1、产品概述
12kV新一代标准化环保气体绝缘环网柜,利用智能传感、一二次融合、边缘计算等先进技术,小型化、模块化、智能化方面实现新突破。研制从电流/电压电子式、数字式传感器,温度、机械特性、局放、压力、湿度等全面状态在线感知、智能预警,隔离断口可视化,高机械寿命方面,共同实现环网柜及配套设备的电气监测、状态监测、供电质量监视和区域自治等优点。系统同时可广泛应用于电网、交通、工厂、医院、学校、住宅小区及智能楼宇等智能配电领域。
2、产品特点:
1) 绿色环保:零表压,无温室气体排放,所有零部件及生产工艺均严格控制,所有原材料中有害化学元素成分含量,尽量减少生产过程中有害物质的产生,严格按照欧盟法规的规定控制,产品生命周期后的材料可回收利用,不会造成环境废弃污染。
2) 体积小:取消SF6气体绝缘,将一次回路的带电部件采用新工艺技术和开关功能都置于一个密闭的环网柜内,体积小,占地面积少。
3) 操作安全:采用三工位开关、接地开关与断路器操作机构一体化设计,具有手动/电动操作功能,具备完善的“五防”联锁功能。
4) 模块化:采用模块式插接技术实现各功能隔室或气箱间和二次通信连接,使现场拼接安装方便,可实现各种电气组合方案。
5) 智能化:一二次设备融合设计,满足智能电网功能要求,为中压配电领域提供智能化配电解决方案。
6) 安全可靠:采用微正压力干燥空气绝缘,降低了气体的泄漏概率,即使气箱发生漏气故障,仍在零表压时维持足够的绝缘强度不会影响设备正常运行,气体封闭金属外壳可靠接地,保证了运行维护人员的人身安全。
7) 应用性强:所有高压元件密封在充气的(不锈钢)气箱内,不受外界环境污染影响,特别适用于高海拔、严寒、潮湿、污秽等恶劣环境。
8) 免维护:采用高寿命、免维护真空灭弧室,高压绝缘不受外界环境的影响,不易老化,可靠提高了设备全寿命周期。
3、产品结构方案:
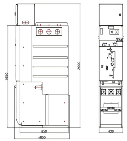
国网标准化尺寸:真空断路器V柜方案宽度为 420mm,侧扩柜体高度(不含仪表箱)为1650mm,其中仪表箱高度为350mm,顶扩柜体高度(不含仪表箱)为1600mm,其中仪表箱高度为350mm。PT 柜方案宽度为600mm。

侧扩柜体外形尺寸图 顶扩柜体外形尺寸图
4、产品应用场景:
广泛应用于电网户内配电房、工厂、医院、学校、住宅小区及智能楼宇等配电领域。
5、技术参数:
